Вычисляем безопасное расположение
Розетки размещаются на высоте не ниже 25 см от пола. Безопасная высота розетки определяется по принципу «чем выше, тем лучше», но так нам может не хватить длины провода. Вполне приемлемое расстояние от пола и смесителей — 60 см. В случае затопления вода не должна достичь уровня электрооборудования. Розетки и выключатели должны быть специальные — со степенью защиты не ниже IP44.

Правила электробезопасности
Из-за регулярно намокающих стен и пола, влажного воздуха в комнате создается среда, проводящая электроток. Потому разводку питающей сети и расположение розеток в ванной нужно проектировать, следуя правилам и нормам электробезопасности:
- Для приборов значительной мощности (сушилки, стиральной машинки, водонагревателя) необходимо проводить обособленную линию и ставить для нее отдельный автомат. Точки питания маломощных приборов (фена, электробритвы) можно подключать к общей сети.
- Устройство заземления. Важнейший фактор в обеспечении безопасности. Заземление подводится на входной щиток, в котором расположены автоматические выключатели и далее разводится по всем розеткам.
- Установка УЗО. Устройством контролируется работа проводки, относящейся к ванной. При утечке тока прибор прерывает подачу электроэнергии в помещение. Для ванной ставится УЗО с током утечки (срабатывания) — 10 мА.
- Отсутствие соединений и клемм. Скрутки запрещены даже под облицовкой стен и напольным покрытием. Распаячная коробка устраивается снаружи.
- Обустройство системы уравнивания потенциалов. Она необходима независимо от наличия розеток в ванной. Все металлические предметы в помещении заземляются (канализационная труба, трубопровод, стальная или чугунная ванна, душевая кабинка и т.д.).

Розетка для полотенцесушителя
Розетку для полотенцесушителя желательно разместить рядом с ним, а не под ним. Чтобы вода с мокрой одежды не стекала к розетке.
Розетка для стиральной машины
Для удобства розетку для стиральной машины располагают на высоте 100 см от пола. Но в некоторых случаях, например, когда в семье есть маленькие дети, розетку лучше спрятать за стиральную машину на высоту не менее 60 см. Розетка должна быть специальная — со степенью защиты не ниже IP44.

Кабельный вывод для водонагревателя
Кабельный вывод для водонагревателя располагают после выбора самого водонагревателя, когда известны его размер и способ подключения воды — снизу или сзади.
Дополнительные розетки
Розетки в зеркальных шкафчиках лучше располагать после того, как определитесь с выбором самого шкафчика.

Совет INMYROOM: если в вашем санузле плитка с оригинальным рисунком или стены сложных оттенков, не покупайте стандартные розетки и выключатели белого, бежевого или серого цвета. К примеру, в Legrand большой выбор рамок разных цветов, фактур и форм.
Можно даже комбинировать: выключатель синего цвета для ванной, желтая розетка — под цвет стен гостиной, а металлическая розетка — для коридора. Подобранные к интерьеру, они не будут выглядеть чужеродными и нарочитыми на стенах.
Зачем это нужно
По примерным подсчетам в каждой квартире используется не менее 6 бытовых приборов за сутки
Это число постоянно возрастает, а количество электророзеток остается неизменным, поэтому важно грамотно спланировать их местоположение. Если точки питания установлены в доме хаотично, придется отключать одни устройства для зарядки других
Это ведет к неудобству использования и риску повышения предельной мощности, на которую рассчитан механизм, и поломке подключаемого устройства.
Самостоятельно планируя помещение, нужно понимать его предназначение, какие устройства использоваться и как располагаться. Расстановку производят с учетом технических норм.
Кабель какой марки выбрать для розеток
Кабельная индустрия разрабатывает все новые виды кабелей, поэтому становится понятна растерянность человека перед таким выбором. Так какой кабель выбрать для розеток?
Все кабели условно можно разбить на три категории изготовления:
- ТУ;
- ГОСТ;
- иностранного происхождения.
ТУ – технические условия разрабатываются разработчиком, изготовителем или заказчиком для установки требований для этого изделия.
Они не должны противоречить ГОСТ, но и не обязаны строго соблюдать требования последних. Благодаря этому качество у таких изделий может сильно отличаться от ГОСТ.
Например, сечение проводника, указанного на маркировке, может быть меньше, а вместо меди использоваться его сплав.
В начале ГОСТ существовал только в Советском Союзе, позднее его принял ряд других стран. Отличается от ТУ более строгими требованиями. К последней категории относится продукция, выпускаемая в других странах, не поддерживающих ГОСТ.
Из-за обилия технической документации и стандартов невозможно описать все существующие варианты, остановимся лишь на самых распространенных.
Кроме того, кабели различаются по назначению:
- силовые;
- связи;
- радиочастотные;
- управления и другие.
Нас будут волновать только силовые.
Правила расположения розеток и выключателей
ПУЭ 7. Правила устройства электроустановок
7.1.50 Минимальное расстояние от включателей, штепсельных разъемов и элементов электроустановок до газопроводов должно быть не менее 0,5 м.
СП 31-110-2003. Проектирование и монтаж электроустановок жилых и общественных зданий
14.33 Включатели в квартирах и общежитиях рекомендуется устанавливать со стороны дверной ручки не выше 100 см..
…Включатели общего освещения в помещениях общественных зданий рекомендуется устанавливать на расстоянии до 1,5 м.
14.35 В школах и детских дошкольных учреждениях в помещениях для пребывания детей включатели и розетки должны устанавливаться на высоте 1,8 м.
В силовой сети предприятий общественного питания и торговли розетки следует, как правило, устанавливать на 1,3 м…
СП 76.13330.2016 ( СНиП 3.05.06-85) Электртехнические устройтсва
6.9.16 В школах и детских дошкольных учреждениях в помещениях для пребывания детей включатели и электророзетки должны устанавливаться на 1,8 м.
Установка осветительных и силовых розеток в других общественных зданиях и помещениях выбирается удобной для присоединения к ним электрических приборов в зависимости от назначения помещений и оформления интерьеров, но, как правило, не выше чем на 1 м от пола.
6.13.21 От нагревательных кабелей до установочной электроаппаратуры должно быть не менее 200 мм.
В представленной в нормативке информации недостаточно, чтобы выбрать места расположения электроустановочного оборудования для всей квартиры или дома.
Возможно поэтому сформировался и получил широкое распространение, так называемый —
3 Запланировать недостаточно розеток
Пожалуй, это самая распространенная ошибка. Те, кто делают ремонт не в первый раз, говорят — розеток должно быть ровно в два раза больше, чем вы изначально запланировали. Мы, конечно, не будем столь радикальны. Но розеток должно быть немало. Посчитайте, сколько предметов техники вы планируете использовать постоянно: телевизор (сколько?), духовка, варочная панель, холодильник, посудомоечная машина, фен, электрическая бритва или электрическая зубная щетка. Даже такие мелочи важны.
Фото: Instagram my_lovely_flat
Сколько нужно розеток?
Даем шпаргалку по каждой комнате. Запишите себе, и адаптируйте под свой интерьер.
В кухне нужно продумать сколько розеток, сколько планируется техники. На фартуке — тоже минимум 4 розетки, для мелкой техники, которая рано или поздно появится.. А еще у обеденной группы — вдруг вы захотите поставить там торшер.
В гостиной должно быть минимум 5 розеток — 2 у дивана, еще 2 — в районе рабочего стола, если он есть. Но даже если нет — розетки все равно предусмотрите. 1 розетку для ТВ, и кстати у современных устройств есть необходимость еще и в интернет-розетке. И про кондиционер не забудьте!
В спальне предусмотрите по 2 розетки с каждой стороны кровати — для бра, прикроватных ламп или зарядки телефона точно пригодится. Можно еще 1 сделать у входа, обычно в нее включают пылесос или, например, обогреватель.
В санузле хватит 2-3 розеток, но зависит еще и от количества приборов. Если у вас электрический полотенцесушитель, есть водонагреватель, и установлена стиральная машина — прибавьте еще 3 розетки. Не забудьте разместить розетки в районе зеркала над раковиной.
Материалы для изготовления проводов
Как правило, монтаж электропроводки в частном доме или квартире делают с использованием трехжильных проводов. Причем у каждой жилы — отдельная изоляция, все они имеют различную расцветку – коричневый, синий, желто-зеленый (стандарт). Жила – это именно та часть провода, по которой протекает ток. Она может быть как однопроволочной, так и многопроволочной. В некоторых марках провода используется хлопчатобумажная оплетка поверх жил. Материалы для изготовления жил проводов:
- Сталь.
- Медь.
- Алюминий.
Иногда можно встретить комбинированные, например, медный провод многопроволочный с несколькими стальными проводниками. Но такие использовались для осуществления полевой телефонной связи – по медным передавался сигнал, а стальные использовались по большей части для проведения крепления к опорам. Поэтому в этой статье о таких проводах разговор идти не будет. Для квартир и частных домов идеальным оказывается медный провод. Он долговечный, надежный, характеристики намного выше, нежели у дешевого алюминия. Конечно, цена медного провода кусается, но стоит упомянуть о том, что его срок службы (гарантированный) — 50 лет.
Прихожая, коридор, лестница
Часто коридоры в домах имеют продолговатое расположение. При размещении потолочных светильников мы должны выбрать более чем один светильник в середине, чтобы равномерно освещать помещение. В дополнение к типичной цепи освещения потолка и стен часто встречается использование небольших энергосберегающих светильников для освещения лестницы и пола. Не имеет смысла ставить электрические розетки по всей длине стен коридора. Только один слот в начале и другой в конце помещения.

Часто светильники выполняют не только прямую функцию — освещать, но и создают уют и напрямую участвуют в создании стиля и настроения.
Важным элементом освещения коридоров и лестниц является использование проходных выключателей (перекрёстных). Такое соединение цепи даёт очень удобную возможность производить включение и выключение светильников с двух и более мест, то есть возможность включить освещение в начале коридора, и отключить его в конце.
Розетка в ванной: для чего она необходима
При выборе, сколько именно розеток, выключателей нужно в ванной, учитывается количество жильцов квартиры, их потребности. Чтобы качественно и быстро побриться, люди пользуются электрической бритвой, которая включается в электросеть. Многие дорогие модели душевых кабин также требуют подключения, не говоря уже о стиральной машине, имеющейся практически в каждом доме. Разнообразным приборам для сушки, укладки завивки, выпрямления волос, также требуется электричество для работы.

Если в ванной комнате планируется размещение стиральной машины, для её подключения понадобится отдельная розетка
Лучше сколько угодно большое количество розеток, имеющих правильное размещение, чем один удлинитель с кучей проводов, протянутых в самых неудачных местах.
Схема расположения
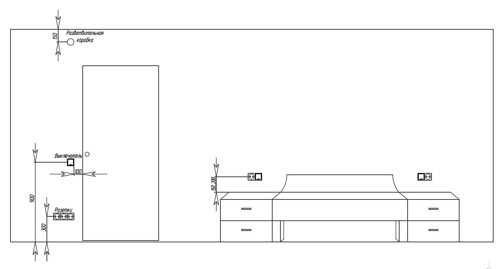
По советам профессионалов мы сделали пошаговую инструкцию по выбору расположения электроточек в спальне. Все шаги делать до монтажа проводки и штробления стен, карандашом или маркером на стенах.
Первый шаг – считаем количество оборудования, выше описан типовой набор, у нас вышло около 9 розеток для него.
Второй шаг — разбиваем комнаты на зоны и определяем, как будем подключать оборудование. Итак, для подключения телевизора нужно установить блок из 3 и более розеток, можно установить по 2 двойных или 3-4 одинарных за телевизором. Если он стоит на тумбе – возможна установка вдоль плинтуса, а если он подвешен на стене – 130-150 сантиметров прямо за телевизором. Так вы сможете скрыть провода и улучшить эстетический вид комнаты.


Под рабочее место на самом деле достаточно и 2 электроточек, ведь компьютерную технику положено подключать через сетевой фильтр. От него запитаем и акустическую систему, и роутер, и другие сопутствующие приборы, а ко второй подключим настольную лампу.

Высота установки в этом случае должна быть немного выше стола. При условии, что рабочие столы в среднем по 75-80 см, значит устанавливаем их на высоте 90-100 см или под ним – высота 30-60 см.

Если у вас большая спальня и с каждой стороны возле кровати стоит прикроватная тумбочка, то возле неё устанавливаем по 2 розетки: 1 для светильника и 1 для зарядки мобильных устройств. Если вы обычно заряжаете что-то еще кроме смартфона или часто работает за ноутбуком лёжа в постели, то будем идеальным решением установить 2 или 3 с каждой стороны возле кровати на расстоянии вытянутой руки. Правильное их расположение на 10-20 сантиметров над тумбочкой. Они обычно невысокие, значит розетка будет установлена на высоте около 60-80 см.

И около стола для макияжа или трюмо устанавливаете две розетки – одна для светильника, а вторая для фена и плойки, например. Как её расположить решайте, опираясь на длину проводов. Оптимальной будет установка на высоте 120 см от пола.
Третий шаг – нужно определить достаточно ли мест для подключения приборов в спальне и не создается ли впечатление что их слишком много. Если розетки ощутимо портят внешний вид помещения, можно визуально уменьшить количество. Более точно подойдите к вопросу где их ставить. Например, если возле прикроватных тумбочек вы решили установить 4 розетки, посмотрите где они будут лучше смотреться вверху или внизу у кровати, перенеся некоторые за мебель или ближе к плинтусу. Кстати, если вы в этой комнате будете гладить белье – также позаботьтесь о подключении утюга около свободного угла или стены.

Также рекомендуем посмотреть видео, на котором наглядно показывается, где лучше установить выключатели и розетки в спальне:
Для каждой спальни правильное расположение всех элементов интерьера подбирается индивидуально. Поэтому данную статью следует рассматривать как один из вариантов решения задачи. Размещение розеток в спальне в большей степени зависит от количества оборудования и привычек жильцов. Возможно вам будет удобно вообще разместить блок из дюжины точек для подключения питания в одном ряду где-нибудь возле стола или тумбы. Также немаловажную роль играет дизайн и размеры помещения.
Также читают:
- Как расположить розетки на кухне
- Правильное размещение светильников на потолке
- Как разметить стены под электропроводку
Планирование выключателей и розеток
По подсчетам, каждый человек использует примерно шесть различных электроприборов за сутки. И количество постоянно растет. Появляются новые устройства и гаджеты, без которых с трудом можно представить жизнь.
Приборы наполняют наши дома, а количество розеток остается неизменным.
Случаи, когда человек в панике бегает по дому или офису, в поиске свободного разъема для зарядки смартфона, все чаще и чаще происходят. А что в итоге? Приходится отключать принтер или что-либо еще. Избежать подобных ситуаций несложно, необходимо только знать, как можно правильно расположить разъемы. Тогда пользоваться ними станет максимально комфортно.
Чтобы избежать косметического ремонта при установке/переносе электропроводки нужно обязательно выделить время на составление плана расположение розеток и выключателей в квартире. Например, при заказе проекта у дизайнера интерьеров, в приложении обязательно указывается точное число разъемов сети и рубильников, а также их расположение. Поскольку разработчик интерьера может не знать, что вы предпочитаете трудиться за ноутбуком на диване.
Утверждение проекта – это точка, до которой принимаются все пожелания и вносятся правки в проект.
При самостоятельном планировании интерьера важно понимать предназначение помещения и его оформление. Учитывается также место расположения мебели, поскольку розетка за шкафом-купе – бесполезная вещь
А если вы любите раз в полгода переставлять всю мебель в комнате? Выходит, что расчет количества рубильников и розеток осуществляется только после разработки дизайна.
Законы и технические нормы
Строительные нормативы, строго регламентирующие число и расположение разъемов сети и выключателей в доме, на законодательном уровне не прописаны. Но существует документ под названием «Свод правил по проектированию и строительству» или СП 31-110-2003, в котором прописаны рекомендации, где располагать рубильники и разъемы электросети. Первые располагаются со стороны дверной ручки на высоте до 1000 мм, а вторые – в удобном месте, но на такой же высоте. Следует руководствоваться только здравым смыслом и собственным выбором.
Правила в размещении выключателей
Выключатель для главного освещения принято размещать около дверного проема на высоте 750–900 мм. Расчет высоты следует проводить на основе показателей среднего роста всех взрослых в семье. В результате, каждый с комфортом должен нажимать на кнопку рубильника, не поднимая руки вверх.
Уровень 800 мм будет сравнительно для всех образцовым. Выключатель нужно расположить так, чтобы при закрытой двери, он был со стороны ручки, а не наоборот. Тогда при открытии дверь не перекроет его. Также нельзя закрывать доступ к рубильнику различной мебелью и шкафами.
Точки электропитания для осветительных приборов в ванной, уборной и кладовой необходимо монтировать в коридоре. Для жилых комнат, кухни, а также самого коридора правильным будет расположение внутри самих помещений. Электроустановочные приборы для регулировки вспомогательного или украшающего освещения монтируется в удобном месте, но с учетом дизайна.
Многоуровневое зонирование
Оптимальным решением будет создание нескольких световых уровней. Игровая зона, наиболее отдаленная от естественного света, нуждается в более интенсивном освещении. Таким образом, по периметру данной зоны монтируется так называемый верхний свет.
Центральная часть комнаты, то есть зона отдыха, отделяется от общего пространства «средним светом» с более мягким свечением. Здесь принято устанавливать большое количество декоративных светильников и других дополнительных источников света. Третий, «нижний свет», предназначен для зонирования рабочего места. С этой целью чаще всего используются встроенная подсветка, настольная лампа и небольшие боковые светильники.

Некоторые дизайнеры выделяют четвертый уровень светового зонирования – отдельное освещение в спальной зоне. Однако оно подходит только для больших по площади помещений либо, в большинстве случаев, его заменяет искусственный свет игровой зоны или рабочего уголка.

В заключение хочется еще раз напомнить, что детская комната требует достаточного электроосвещения. Все приборы должны отвечать международным стандартам качества, быть безопасными и функциональными. Они не должны быть легко доступны, как и провода, розетки, выключатели. Создавая центральное освещение не экономьте на светильниках – выбирайте модели из прочных материалов с возможностью регулирования яркости света.
Сколько розеток нужно иметь в доме?
Балкон или лоджия Многие вообще не берут во внимание данное пространство, а по прошествии времени понимают, что не мешало бы и там иметь парочку розеток. Освещение ванной комнаты. Не старье, а винтаж: разбираемся в ретро электрике
Взрывозащищенные светильники: сфера применения и виды. Настольные светильники и лампы. Ученье свет: как выбрать лампу для школьника. Беспроводные зарядные устройства. Если в спальной комнате находится телевизор, то блок и для него предусмотреть из розеток. Для подключения техники: пылесоса, соляной лампы, увлажнителя воздуха, для зарядки ноутбука и телефона, блок розеток лучше расположить на удаленной стене или возле комода
Не старье, а винтаж: разбираемся в ретро электрике. Взрывозащищенные светильники: сфера применения и виды. Настольные светильники и лампы. Ученье свет: как выбрать лампу для школьника. Беспроводные зарядные устройства. Если в спальной комнате находится телевизор, то блок и для него предусмотреть из розеток. Для подключения техники: пылесоса, соляной лампы, увлажнителя воздуха, для зарядки ноутбука и телефона, блок розеток лучше расположить на удаленной стене или возле комода
Освещение ванной комнаты. Не старье, а винтаж: разбираемся в ретро электрике. Взрывозащищенные светильники: сфера применения и виды. Настольные светильники и лампы. Ученье свет: как выбрать лампу для школьника. Беспроводные зарядные устройства. Если в спальной комнате находится телевизор, то блок и для него предусмотреть из розеток. Для подключения техники: пылесоса, соляной лампы, увлажнителя воздуха, для зарядки ноутбука и телефона, блок розеток лучше расположить на удаленной стене или возле комода.
В детской комнате предусмотреть блок розеток около рабочего стола, желательно предусмотреть и розетку под интернет.
Современная квартира — это не просто жилище человека. Она разделена на несколько зон различного функционального назначения, каждая из которых имеет индивидуальную планировку и расстановку мебели, оснащена самостоятельной системой освещения. Чтобы избежать разочарования от вида висящих проводов и удлинителей нужно ответственно подойти к планированию помещения квартиры еще на стадии начала ремонта.
Если планируете для детей поставить телевизор, то около него размещают розетки. На противоположной стене от рабочего стола можно расположить дополнительную розетку.
Только для детской комнаты розетки выбирать со шторками. На этот вопрос нет однозначного ответа. Очень много зависит от комнаты о которой идет речь. Также необходимо учитывать есть ли в квартире маленькие дети. Но обычно в спальне достаточно одной или двух розеток.
В зале в зависимости от площади и количества бытовых приборов, а это может быть и телевизор, и музыкальный центр и компьютер и настольная лампа. Да и для пылесоса лучше иметь отдельную розетку. Так что для зала минимум это 3 розетки.
Сколько необходимо розеток
Естественно лучше если они находятся непосредственно рядом с местами установки бытовых приборов. Вот примерная схема расположения розеток. Как мы привыкли обычно розетки располагаются на высоте 90 сантиметров от пола. Но по евро стандарту на высоте 30 сантиметров от поверхности пола.
Ванная и туалет

В домах, которые построены более тридцати лет назад, подобных электрических коммуникаций в ванной комнате и туалете не предусматривалось вообще. Люди тогда и слыхом не слыхивал о таких чудесах, как джакузи или душевая кабинка, поэтому вопроса, как разместить розетки в ванной, никто перед собой не ставил.
Некоторые умельцы самостоятельно протягивали в ванную провода, крепили разъемы, в которые включали электробритву «Харьков» или фен. Сегодня все знают про эти чудеса, все они доступны и приятны. Поэтому проектируя ванную комнату, нужно сразу же присмотреть и места для розеток.
Важно:
- Все выключатели и прочее электротехническое оборудование должно соответствовать стандарту для электрооборудования для влажных помещений (класс защиты не менее IP44) и быть надежно заземлены. Дизайнер или проектировщик непременно должен сказать вам об этом
- Розетку для джакузи и душевой кабины можно установить за их декоративными стенками, вы не будете постоянно включать и выключать эти агрегаты
- Розетка для вытяжного вентилятора может быть установлена наверху, рядом с ним, хотя чаще всего вытяжной вентилятор подключают к системе освещения: включили свет — зажужжал вентилятор
- Возле зеркала ванной комнаты, которое обычно висит над умывальником, можно смонтировать одну или две точки. Одну можно использовать для питания светильников над зеркалом, вторую — для фена, бритвы и прочих мелких приборов. Естественно, помним про класс защиты и заземление
- Если габариты ванной комнаты позволяют установить еще и стиральную машину, помните, что разъем для нее располагается на расстоянии не менее 50-60 см от водопроводных труб
Розетки на кухне.
Современная кухня оборудована множеством электрических приборов, крупными — духовым шкафом, электрической варочной поверхностью, вытяжкой, холодильником, посудомоечной машиной, иногда и стиральной машиной и более мелкой среди которых — электрочайники, кофеварки, блендеры, тостеры, мясорубки, миксеры, кухонные комбайны, микроволновые печи, аэрогрили и т.д., кроме этого не редко там есть телевизор, декоративное освещение, системы теплого пола и т.п.
Проектирование электропроводки необходимо начать со схемы всей мебели и указания электроприборов. Особенно тщательно нужно рассчитать кухонный гарнитур, так как там обычно находится основная часть электрооборудования. Есть несколько основных правил, расположения розеток в нем.
- Кухонные розетки для встраиваемой техники лучше установить за стенками соседних тумбочек или шкафов, при этом для доступа, необходимо выпилить их задние стенки. Высота установки розеток в тумбочках должна быть 30-60 см. от уровня чистого пола. Такой вариант наиболее удобный, вы всегда будете иметь доступ до вилок питания. Нельзя располагать розетки непосредственно за встроенными кухонными электроприборами.
- Установку розетки для вытяжки, нужно выполнить на высоте 50-60 мм от верха кухонных шкафов. При этом необходимо учитывать, чтобы розетку не закрыл вентиляционный воздуховод, поэтому расстояние от середины вытяжки до розетки должно быть более 20 см.
- Кухонные розетки внутри тумбы с мойкой должны иметь степень защиты не менее чем IP44.
- Розетки над столешницей, для подключения мелких бытовых электроприборов, располагаются на высоте обычно 10-30см. от рабочей поверхности, запрещена установка кухонных розеток за мойкой и плитой.
- Розетки для техники или освещения навесных шкафов, удобно расположить на высоте 5-10см. над ними, так они будут не видны.
Все розетки, кроме розетки для подключения электрической варочной поверхности или плиты, должны быть с заземляющим контактом и рассчитанные на минимальный ток 15А Розетка для электроплиты должна быть специальная, рассчитанная на рабочий ток 25 Ампер и сделана из негорючих полимерных материалов. Покупать розетку лучше в комплекте с вилкой. Так же существует вариант подключения напрямую, через винтовые клеммы.
В нашем примере, в помещении кухни (№ 1 на схеме), за кухонным гарнитуром предусмотрено – розетка для подключения холодильника, находящаяся за ним, на высоте 30см, для вытяжки на высоте 180см, для варочной поверхности, находящаяся за рядом стоящей тумбой на высоте 30см, так же группа розеток, для мелких бытовых приборов над рабочей поверхностью, на высоте 100см., так же предусмотрена розетка для подключения кондиционера под потолком и еще одна под ней, на высоте 30см, для прочих нужд возле обеденного стола. В коридоре у входа на кухню, есть розетка, для подключения например пылесоса, на высоте 30см.
Читайте так же : Правила освещения на кухне

Как выбрать розетку
Устройства, предназначенные для монтажа в комнатах с высокой влажностью, мало чем отличаются от простых.
При выборе устройства обращают внимание на такие параметры:
Класс влагозащиты. Этот параметр определяют, расшифровывая маркировку, нанесенную на корпус или упаковку. Она состоит из символьного обозначения IP и цифрового кода. При выборе электроточки для ванной учитывают обе цифры. Первая отражает степень защищенности от пыли и грязи, вторая — от воды. Обе цифры должны иметь значения более 4. Лучшим вариантом являются розетки со степенью защиты IP65 (+). Герметичность корпуса. Устройства, маркированные цифрами 6-8, способны выдерживать попадание струй
Важной деталью является крышка. Она снабжена встроенной пружиной, препятствующей случайному открыванию. Чтобы ввести штепсель, нужно аккуратно поднять крышку
Наличие дефектов. Устройство осматривают, выявляя трещины или сколы
Чтобы ввести штепсель, нужно аккуратно поднять крышку. Наличие дефектов. Устройство осматривают, выявляя трещины или сколы
Клеммы не должны быть смещенными Обращают внимание на плотность прилегания крышки. Она не должна самопроизвольно открываться
Качество сборки При покупке влагозащищенной розетки не стоит экономить, выбирая товары неизвестных брендов
Длительным сроком службы отличаются изделия марок BERKER, Makel, GIRA.
Качественная розетка стандарта IP-54.
Встраиваемая
По типу монтажа выделяют встраиваемые и накладные изделия
Встраиваемые розетки применяются в пространствах, в которых главное внимание уделяется интерьеру
Встраиваемые приборы не имеют выступающих элементов и незаметны глазу, монтируются прямо в стену на этапе прокладывания или ремонта. Установка таких приборов сложна, в стене придется просверливать углубление.
Накладная
Накладные крепятся к поверхности стены. Такие устройства выступают из стены и имеют защитное покрытие. Преимущество накладных розеток – простота монтажа:
- Достаточно лишь определить место размещения розетки.
- Просверлить отверстия и закрепить устройство.
С крышкой накладная
Накладные розетки с крышкой – это надежный и безопасный вид устройств для ванной комнаты. Крышка дополнительно оберегает электророзетку от попадания внутрь влаги. Недостаток таких розеток – меньшая прочность
По этой причине важно выбирать проверенное устройство
Тройная внутренняя
Тройные внутренние электророзетки используются для подключения нескольких устройств одновременно. Перед приобретением таких приборов нужно заранее узнать их максимальную мощность.
Исходя из полученного значения выбирается розетка. Также обязательны требования к влагостойкости и герметичности. Изделие монтируется в стену.
Закрытые для шкафа
Закрытые розетки для шкафов – это вариант скрытой установки приборов. Чаще монтируются на дне подвесного шкафчика. В нижней части шкафа вырезается отверстие необходимого размера, внутрь устанавливается скрытая розетка. Затем все закрепляется, проводятся провода и подключается. Сверху устанавливается дополнительная полка, которая скроет провода.
Высота выключателя от пола по евростандарту
Приставка «евро-» всегда у нас ассоциируется с чем то новым, более надёжным и качественным. «евростандарт» и «евроремонт» — это современные технологии и материалы в строительстве, более комфортные планировки и расположение всех коммуникаций, в том числе розеток и выключателей освещения. По таким стандартам теперь выполняются все новостройки.
Согласно евростандарту было рассчитано оптимальное расположение выключателей для всех членов семьи. Не слишком высоко для детей и не слишком низко для взрослых. Высота выключателя от пола по евростандарту составляет 0,8 — 0,9 метра . Этот уровень выбран не случайно. Это примерная высота, до которой достаёт опущенная вниз рука взрослого человека.
При этом ребёнок тоже сможет дотянуться до данного уровня. В СП 31–110–2003 пункт 15.34, 15.36 об этом сказано следующее.
Как советский так и евростандарт не являются беспрекословным указанием. Вы можете выбирать высоту установки оборудования в доме в зависимости от вашего удобства и расположения мебели и электроприборов. В комнате, предназначенной для сна удобнее устанавливать выключатели возле спального места на том уровне, до которого можно будет дотянуться из положения лёжа. Это примерно 60 – 70 сантиметров от пола .
В рабочей зоне, помимо основного, предусматривается дополнительное освещение. Это различные настольные или настенные лампы. Их выключатели удобнее располагать на расстоянии 10 – 20 сантиметров от высоты стола. Так можно будет регулировать освещение, не отрываясь от занятий.
Расположение розеток и выключателей необходимо обдумывать заранее до выполнения отделочных работ. После их завершения перенести или добавить дополнительные будет практически невозможно без порчи нового ремонта. Обязательно необходимо учитывать расположение мебели в помещениях и электроприборов на них.
Планирование размещения розеток
Чтобы подробно разобраться с размещением розеток в квартире, перед непосредственным монтажом электроустройств необходимо составить план с учетом количества техники. В первую очередь составляют схему квартиры, отмечая расположение мебели и технических приборов. Причем количество электророзеток увеличивают на одну или две единицы, предусматривая возможное расширение арсенала используемой бытовой техники.
Схема размещения
Если план розеток и выключателей составляется для строителей, в обязательном порядке делают его в масштабе на миллиметровой бумаге с привязкой к общей планировке. Обозначаются места расположения и высота установки устройств в соответствии с нормативами.
План размещения розеток и выключателей в квартире
Как определить необходимое количество
Правильная схема подключения и расчет минимального количества розеток позволит с удобством пользоваться приборами на кухне
Сколько розеток должно быть в квартире, зависит от ее оснащенности бытовой техникой. Эксперты советуют предусмотреть для каждого электрического прибора свой разъем, расположенный в месте, удобном для его использования. Причем в каждом помещении следует еще добавить пару электророзеток с расчетом на будущее. Хорошее подспорье в определении количества электроприборов – подробный план.
Особенности размещения розеток
Высота установки розеток и выключателей
Детализируя план установки, следует уточнить, что к размещению розеток в квартире предъявляются особые правила, имеющие рекомендательный характер, отраженные в «Своде нормативов по строительству и проектированию», а также в СНиП 31–110–2003:
- Высота расположения выключателя определяется с учетом среднего роста членов семьи, чтобы каждый мог пользоваться им, не поднимая руки. В среднем этот показатель равен 80-90 см от поверхности пола.
- Выключатель должен размещаться со стороны дверной ручки, в непосредственной близости от дверного проема, около 10-15 см от него.
- Электроразъемы не должны закрываться предметами мебели, что ухудшает доступ к ним и отток тепла.
- Выключатели для ванной комнаты и туалета выносят в коридор.
Принимают во внимание рекомендации дизайнера и нюансы дизайнерского проекта
Особенности размещение розеток
Существуют определенные нюансы при составлении схемы для монтажа розеток и выключателей:как расположить, на каком расстоянии от мебели и поверхностей, количество точек.Это вопрос индивидуальных потребностей. Продумайте заранее, сколько приборов будет подключаться на постоянной основе в каждом из помещений и приплюсуйте к этому количеству еще по 2-3 штуки для временных устройств.
Современные конструктивные особенности мебели позволяют устанавливать розетки скрытого типа или вмонтированные в поверхности. В случае расположения электрофурнитуры на кухонной столешнице, нужно обезопасить ее от попадания воды или пищи. Как лучше расположить розетки изолированного типа знают специалисты по электромонтажу.
Розетка в ванной комнате






























